手动扇形盲板阀

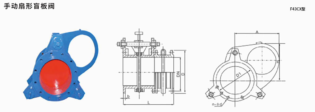
主要连接尺寸(单位:mm)
DN L D D1 H A b n-φd
100 400 210 170 100 202 12 4-o18
150 400 265 225 150 270 14 8-o18
200 400 320 280 200 350 14 8-o18
250 400 375 335 250 400 14 12-φ18
300 500 440 395 300 450 16 12-φ22
350 500 490 445 350 500 16 12-φ22
400 600 540 495 400 550 16 16-φ22
450 600 595 550 450 600 20 16-φ22
500 600 645 600 500 680 20 20-φ22
600 630 755 705 600 840 20 20-φ26
700 630 860 810 700 1050 20 24-φ26
800 630 975 920 800 1150 22 24-φ30
900 800 1075 1020 900 1300 22 24-φ30
1000 800 1175 1120 1000 1430 22 28-φ30
1200 850 1375 1320 1200 1550 22 32-φ30
1400 850 1575 1520 1400 1700 26 36-φ30
1500 850 1675 1620 1500 1850 26 36-φ30
1600 850 1790 1730 1600 2000 26 40-φ30
1800 1100 1990 1930 1800 2150 26 44-φ30
2000 1100 2190 2130 2000 2300 26 48-φ30

 

标签: ,

注:产品资料仅供参考,如有疑问请与我司联系!